2025.12.02
高崎市高関町2号棟





3980万円
| 間取り | 3LDK | 築年月 | 新築 2025年2月下旬 |
|---|---|---|---|
| 建物面積 | 113.33㎡(壁芯) | 土地面積/坪 | 153.87㎡(実測)/ 46.54坪 |
| アクセス | 高崎線 高崎駅 徒歩17分 | ||
| 所在地 | 群馬県 高崎市 高関町 222番地2 |
価格改定しました!
ヤマダホームズがお届けする新築分譲戸建てが、高崎市高関町に誕生しました!(2期)
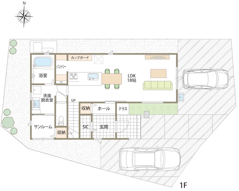
LDK18帖、収納豊富なサンルーム付き3LDKの間取り。
【建物の特長】
・長期優良住宅!
・キッチンはお洒落なペニンシュラキッチン、タッチレス水栓!
・浴室、洗面脱衣室とも2.5帖とゆったり広め!
・サンルームは物干金物2セット設置、室内干しもできます!
・シューズインクローゼット、パントリー、WIC等収納豊富!
※スーパー「ヤオコー高崎高関店」まで徒歩3分!
※高崎市立城東小学校まで徒歩4分!
お問い合わせは電話にてお願いします。
ご見学もできます。
TEL:027-310-2355

