2025.12.02
太田市東矢島町4号棟



3680万円
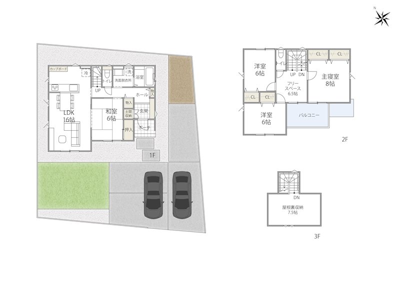
| 間取り | 4LDK | 築年月 | 未入居 2024年3月中旬(築1年) |
|---|---|---|---|
| 建物面積 | 109.3㎡(登記簿) | 土地面積/坪 | 208.7㎡(実測)/ 63.13坪 |
| アクセス | 東武伊勢崎線 太田(群馬)駅 車11分(4.1km) | ||
| 所在地 | 群馬県 太田市 東矢島町 1390番19、1390番22 |
【ヤマダホームズ】がお届けする新築分譲戸建て、太田市東矢島町にて販売中!(4号棟)
回遊動線のある4LDK、スーパーやドラッグストアまで徒歩5分の立地です!
【物件の特長】
・断熱性能5等級
・LDKは隣接する和室と合わせて22帖
・各居室は6帖以上、収納付
・南面バルコニー
・7.5帖の屋根裏収納
・Z空調(全館空調)
・完成済みのためお好きなタイミングで入居可能!
【土地の魅力】
・スーパー「とりせん 東矢島店」まで徒歩5分
・クスリのアオキ東矢島店店まで徒歩5分
・太田市立旭小学校まで徒歩10分
お問い合わせは電話にてお願いします。
ご見学もできます。
TEL:027-310-2355

