2025.11.29
深谷市上芝町東2号棟




3680万円
| 間取り | 4LDK | 築年月 | 新築 2025年1月下旬 |
|---|---|---|---|
| 建物面積 | 110.96㎡(壁芯) | 土地面積/坪 | 181.31㎡(実測)/ 54.84坪 |
| アクセス | 高崎線 籠原駅 徒歩32分 | ||
| 所在地 | 埼玉県深谷市 上柴町東3丁目11番22 (周辺地図) |
ヤマダホームズがお届けする新築分譲戸建て、深谷市上柴町東3丁目にて販売中!(2号棟)
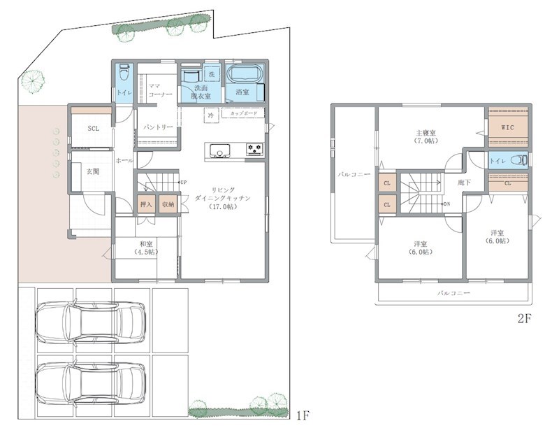
1階はLDK(17帖)+ 和室(4.5帖)、2階は全居室6帖以上の4LDK。
1階に家事コーナー、2階に2面バルコニーを備えた、収納豊富な物件です!
【建物の特長】
・シューズインクローゼット、階段下収納、ウォークインクローゼットなど収納豊富!
・延べ床面積110.96㎡のゆったり設計
・2面バルコニーで大家族にも対応
・断熱性能の高い樹脂サッシを採用!
【土地の魅力】
・スーパー「フーコット深谷店」まで徒歩5分!
お問い合わせは電話にてお願いします。
ご見学もできます。
TEL:027-310-2355

